Range Hood Insert Guidelines
Range Hood Insert Sizing Guidelines
Choosing the correct insert for your custom range hood is essential for proper performance, safe installation, and long-term durability. This guide explains how to determine the right insert width, plan for height limitations, and understand brand compatibility for Rustica House hoods made of copper, zinc, iron, brass, and pewter. Because a custom hood is built around the specifications you provide, insert selection should happen early in your kitchen planning phase, before fabrication begins. If you already own an insert, confirm its exact model number and dimensions. If you have not purchased one yet, select a target insert series first so we can customize the hood interior chassis correctly.
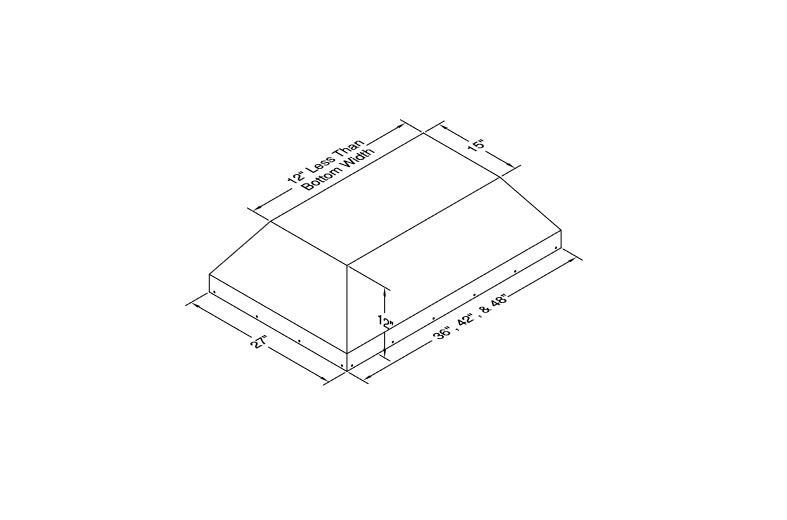
One of the most common mistakes is assuming the hood’s exterior width equals the usable interior width. It does not. Rustica House range hoods are constructed from a metal frame covered with sheet metal, and that structure reduces the internal dimensions compared to the outer size. The goal is to avoid an insert that is too wide to seat properly, or an insert that technically fits but leaves awkward gaps that require oversized filler panels. Use the sizing guidance below as a practical starting point, then verify the final insert cut sheet dimensions from your insert manufacturer before you place your hood order.
Insert Width
A: Rustica House hoods are constructed from a metal frame covered with sheet metal, which reduces the internal dimensions by approximately 2 inches from the external size. Insert widths should be one standard size smaller than the hood's external width to fit properly.
A: We customize for insert width and depth only. Insert height must be considered separately, based on the hood shape and overall dimensions of your kitchen.
| Range Hood Width | Recommended Insert Width |
|---|---|
| 36" | 30" or less |
| 42" | 36" |
| 48" | 42" |
| 52" | 48" |
| 60" | 54" |
To apply the table, start with your hood’s external width and select an insert that is typically one standard size smaller. For example, if you are ordering a 48-inch hood, you will usually shop for a 42-inch insert. The same principle applies at other widths: a 42-inch hood commonly pairs with a 36-inch insert, and so on. This is not a “rule for every brand,” but it is a reliable guideline because many inserts are built to standard nominal sizes while the interior of a handcrafted hood is reduced by framing and sheet metal returns.
Depth matters too, especially if your hood design includes flared walls, recessed panels, crown molding, straps, or other artisan detailing that changes the interior geometry. When you decide on an insert, confirm both its overall depth and its required mounting depth. Some inserts require additional clearance behind the unit for duct connections, wiring, or service access. If your kitchen design includes shallow uppers, tight soffits, or a short distance between the backsplash and cabinet face, it is smart to compare the insert’s depth requirements before committing.
Insert Height and Curved Hood Interiors
A: You have a few options to accommodate insert height:
A: Choose an insert model that is only 6 inches tall.
A: Use an insert with angled sidewalls (around 45 degrees), which adapt more easily to the sloped interiors of bell-shaped or tapered hoods.
A: In some cases, the insert or the hood interior may require custom modifications to allow for a proper fit.
Insert height is often overlooked until installation day, especially with bell-shaped, tapered, or arched hoods. Curved or sloped interior walls can reduce vertical clearance near the edges, even if the hood looks tall from the outside. If your hood style narrows as it rises, a tall insert can collide with the interior geometry. The simplest solution is selecting a low-profile insert around six inches tall. Another practical solution is choosing an insert that is engineered with angled sidewalls, which tends to “nest” more naturally into sloped hood interiors.
If you are trying to match a higher CFM capacity, multiple lights, or advanced controls, double-check whether the insert line you want is offered in a low-profile form factor. Some premium inserts are taller due to blower housings, internal baffles, or integrated electronics. If your preferred insert is tall, your best approach is to address that constraint before the hood is built, so the hood’s internal structure can be planned around the real-world clearance needs.
Recommended Insert Brands
A: As a custom hood manufacturer, Rustica House does not endorse specific brands. The best insert depends on your ventilation needs (CFM rating), lighting preferences, filter type, and available features within your budget.
When comparing inserts, focus on the features that affect daily use: the CFM range you need for your cooking style, the type of filtration you prefer, the kind of lighting you want over your cooktop, and how you want to control the fan speeds. If your kitchen is open concept, noise level at higher speeds may be a priority. If you cook frequently with high heat, you may prioritize grease capture and filter efficiency. If your installation is ductless, verify compatibility with recirculation kits and filters. These practical choices matter more than brand names when you are building a custom hood around a specific insert footprint.
A: Many customers request customization for inserts from Vent-a-Hood and Broan. These brands offer multiple size and CFM options and are known for their reliability.
If you already know your preferred brand, collect the exact documentation for the model you want, including overall dimensions, cutout requirements, mounting method, and any required filler panels. Some insert systems include manufacturer-specific trim kits, stainless fillers, or mounting rails. Others rely on framing supports built into the hood interior. Those differences are important because they affect how the insert will sit, how gaps are addressed, and how the finished underside looks when viewed from below.
Insert Mounting and Trim Coverage
A: When you order a hood customized for your insert, we build the interior chassis to accommodate your insert’s width and depth. Any horizontal gaps between the insert and the hood interior are covered with a trim piece made of matching patinated metal.
A: If the hood has limited height, taller inserts may not fit. You may need to replace or modify the insert independently to install it properly.
A: Most insert manufacturers offer stainless steel mounting hardware or filler panels to bridge the space between the insert edges and the hood’s interior walls.
For the cleanest result, verify the insert model number before your hood is fabricated and treat that selection as “locked.” If the insert changes after the hood is finished, even small differences in flange size, screw locations, or overall height can affect fit. That is why it is helpful to print or save the insert spec sheet, confirm the nominal size and the real measurement, and keep that document with your project records until installation is complete.
Insert Sizing Diagram

Important Policy Note
Applies To
These guidelines apply to Rustica House:
US Dollar
Euro
Australian Dollar
Canadian Dollar
Polish Zloty
British Pound